NARUKAWA Japanese Engineering Class

Produce by NL-DG Co.,ltd NARUKAWA Co.,ltd

目次(統合版)

日本の建築施工図 基礎講座

Japanese Construction Shop Drawing Basic Course

ミャンマー人技術者のための実践ガイド

目次 / Table of Contents

  1. 第1章: 建築施工図とは
    Chapter 1: What is Construction Shop Drawing?
  2. 第2章: 施工図の種類
    Chapter 2: Types of Shop Drawings
  3. 第3章: 図面の基本ルール
    Chapter 3: Basic Rules of Drawing
  4. 第4章: 躯体図の基本
    Chapter 4: Structural Frame Drawing Basics
  5. 第5章: 仕上げ図の基本
    Chapter 5: Finishing Drawing Basics
  6. 第6章: 実務のポイント
    Chapter 6: Practical Points
  7. 重要な日本語建築用語集
    Important Japanese Construction Terms
  8. 学習のポイント
    Learning Points
  9. まとめ
    Summary

この講習会について / About This Course

🎯 講習の目的 (Course Objectives)

この講習会は、ミャンマーから来日した建築技術者の皆さんが、日本の建築施工図を理解し、実務で活用できるようになることを目的としています。

この講習会で学べること:

📋 受講にあたって (Prerequisites)

この講習会は以下の方を対象としています:

学習のアドバイス:

💪 日本の建築現場で成功するために

日本の建築業界は、正確性、品質、安全性を非常に重視します。施工図は、これらを実現するための重要なツールです。

皆さんの学習意欲と努力が、日本の建築業界での成功につながります。頑張りましょう!


第1章: 建築施工図とは
Chapter 1: What is Construction Shop Drawing?

1.1 設計図と施工図の違い (Design Drawing vs Shop Drawing)

設計図 (Design Drawing) とは:

施工図 (Shop Drawing) とは:

施工図の例 (Example of Shop Drawing)

図1.1: 建築施工図の作図例 (Example of Shop Drawing)

設計図と施工図の関係図:

施主 (Owner)

設計・監理 (Design & Supervision)

工事施工者 (Contractor)

施工図 (Shop Drawing)

1.2 施工図の役割と重要性

  1. 職人との意思伝達手段 (Communication with craftsmen)
    図面を通じて工事内容を正確に伝えます。
  2. 各部位の納まりの確認 (Detail coordination check)
    構造、設備、仕上げの整合性を確認します。
  3. 品質管理の基準 (Quality control standard)
    施工精度と品質を確保する基準となります。

1.3 日本の建築現場における施工図の位置づけ

1.4 施工工程と作図スケジュール (Construction Schedule and Drawing Timeline)

施工図は工事の進捗に合わせて段階的に作成します。以下は一般的な流れです:

施工図作成の基本的な流れ:

  1. 着工準備段階:総合仮設計画図、根切・山留計画図
  2. 基礎工事段階:杭伏せ図、基礎伏せ図
  3. 躯体工事段階:各階躯体図、階段躯体図
  4. 仕上げ工事段階:平面詳細図、天井伏せ図、外壁タイル割付図
  5. 設備工事段階:設備施工図との整合確認

⚠️ 重要ポイント (Important Points):


第2章: 施工図の種類
Chapter 2: Types of Shop Drawings

2.1 仮設計画図 (Temporary Works Plan)

目的:安全で効率的な工事を進めるための計画図

主な仮設計画図の種類:

  1. 総合仮設計画図 (General Temporary Works Plan)
    • 仮囲い (Temporary fence) の位置
    • 工事用道路 (Construction road)
    • 資材置き場 (Material storage area)
    • 現場事務所・休憩所の配置
    • 揚重機 (Crane) の設置位置
  2. 根切・山留計画図 (Excavation & Earth Retaining Plan)
    • 掘削範囲と深さ
    • 土留め工法 (切梁支保工、アンカー工法など)
    • 地下水処理方法
    • 周辺建物への影響対策
  3. 外部足場計画図 (External Scaffolding Plan)
    • 足場の種類 (枠組足場、単管足場など)
    • 足場の配置と高さ
    • 歩道・道路の使用許可範囲
    • 安全ネット・養生シートの設置
  4. 型枠支保工計画図 (Formwork & Shoring Plan)
    • 型枠の組立方法
    • 支保工 (パイプサポート等) の配置
    • セパレーター・目地の位置
    • 型枠解体の順序

⚠️ 安全上の注意 (Safety Precautions):

2.2 躯体図 (Structural Frame Drawing)

目的:建物の骨組みを正確に施工するための図面

2.3 仕上げ図 (Finishing Drawing)

外部仕上げ (External Finishing): 外壁タイル割付図、屋上仕上げ詳細図など

内部仕上げ (Internal Finishing): 平面詳細図、天井伏せ図、展開図、便所詳細図など

2.4 設備図・その他


第3章: 図面の基本ルール
Chapter 3: Basic Rules of Drawing

3.1 線の種類と使い分け (Line Types and Usage)

日本の建築図面では、線の種類によって意味が異なります。

線種 (Type) 太さ (Width) 用途 (Usage)
実線 (Solid Line) 太線 (Thick) 0.35mm 建物外周、断面部分(最も重要)
実線 (Solid Line) 中線 (Medium) 0.20mm 躯体断面、仕上げ線、設備機器
実線 (Solid Line) 細線 (Thin) 0.10mm 見えがかり、寸法線、ハッチング
破線 (Dashed Line) 各種 隠れ線 (Hidden parts)、仮設物
一点鎖線 (Chain Line) 中・細 通り芯 (Grid lines)、中心線
線の種類 (Line Types)

図3.1: 建築図面で使用される線の種類 (Types of architectural lines)

3.2 図面記号の読み方 (Reading Drawing Symbols)

図面には多くの記号が使われています。

建築図面記号一覧 (Architectural Symbols)

図3.2: 一般的な建築図面記号 (Common Architectural Symbols)

躯体記号 (Structural Symbols) の例:

3.3 寸法の書き方と読み方 (Dimensioning)

3.4 縮尺の理解 (Understanding Scale)

1/100, 1/50, 1/20などがよく使われます。例:1/100図面上の10mmは、実際の1000mm(1m)です。


第4章: 躯体図の基本
Chapter 4: Structural Frame Drawing Basics

4.1 基礎伏せ図の見方 (Foundation Layout Plan)

基礎伏せ図は、建物の基礎を真上から見た図面です。通り芯、基礎の形状、地中梁、配筋情報などが記載されます。

基礎伏図の例 (Foundation Plan Example)

図4.1: 基礎伏図の例 (Example of Foundation Plan)

4.2 躯体図の記号 (Structural Symbols)

4.3 階段躯体図 (Stair Structure Drawing)

階段は複雑なため詳細図が必要です。蹴上げ (Riser)踏面 (Tread)の寸法、配筋情報が重要です。

📐 建築基準法の階段規定 (Building Code for Stairs):

※この規定を守らないと、階段が急すぎたり緩すぎたりして安全性に問題が生じます。

4.4 躯体図作成のポイント (Key Points for Structural Drawing)

チェックリスト:

  1. 構造図との整合性を確認する(柱・梁の位置、断面寸法)
  2. 設備図との調整(貫通穴、スリーブの位置)
  3. 通り芯からの寸法を正確に記入する
  4. 基準レベル(FL, SL)を明記する
  5. 配筋情報を漏れなく記載する
  6. 開口部の寸法と位置を確認する

第5章: 仕上げ図の基本
Chapter 5: Finishing Drawing Basics

5.1 平面詳細図 (Floor Detail Plan)

各階の仕上げ情報を詳細に表した図面です。

平面詳細図に記載される主な内容:

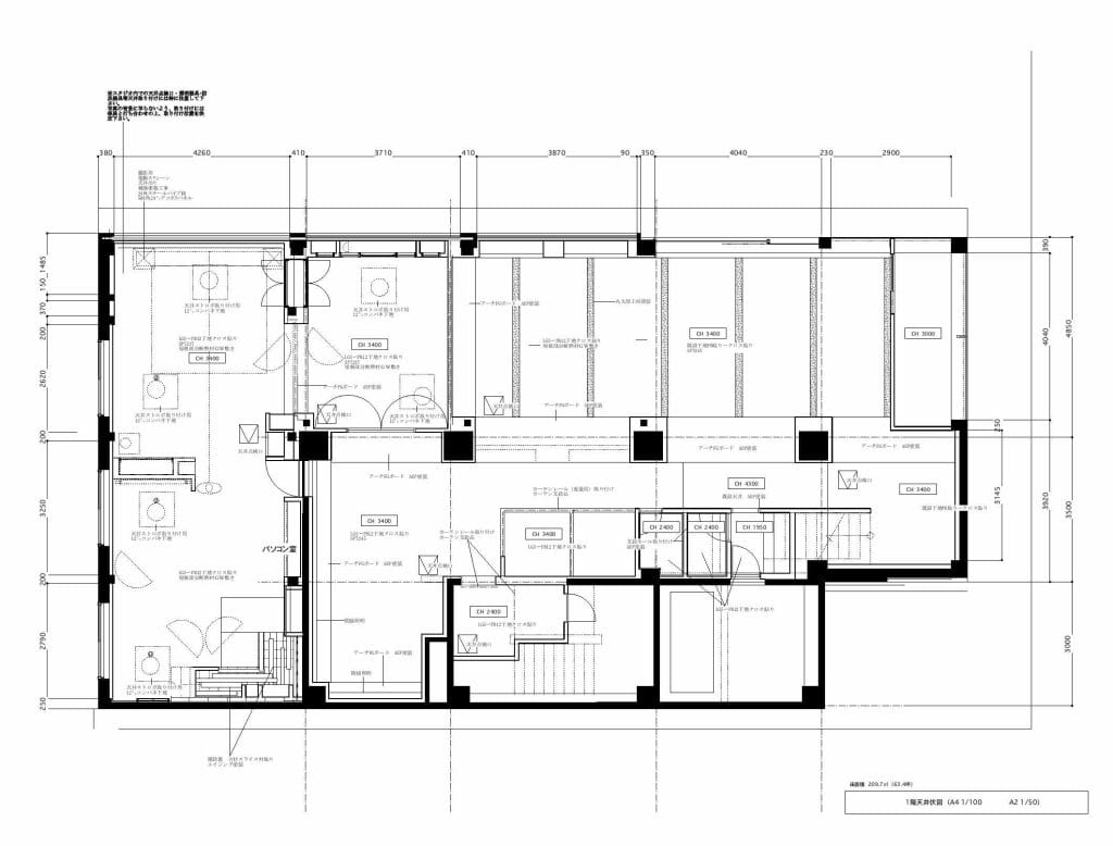
5.2 天井伏せ図 (Ceiling Plan)

天井を下から見上げた図面です。

5.3 展開図 (Elevation Drawing)

部屋の壁面を内側から見た図面です。

展開図の例 (Interior Elevation Example)

図5.1: 展開図のイメージ (Interior Elevation Image)

5.4 タイル割付図 (Tile Layout Drawing)

タイルの張り方、目地、半端なタイルの位置などを詳細に決定する図面です。美観に直結します。

タイル割付図作成のポイント:

  1. 美観優先:建物の正面や目立つ位置に小口タイル(半端なタイル)が来ないように割り付ける
  2. 目地の通り:縦目地と横目地が通るように調整する
  3. 開口部周り:窓やドアの周りのタイル割りに注意する
  4. 役物タイル:出隅(外角)、入隅(内角)には専用の役物タイルを使用
  5. 伸縮目地:一定間隔で伸縮目地(ムーブメントジョイント)を設ける

5.5 仕上げ図作成の注意点


第6章: 実務のポイント
Chapter 6: Practical Points

6.1 図面チェックの要点 (Drawing Check Points)

6.2 よくある間違い (Common Mistakes)

❌ 注意!これらのミスに気をつけよう:

1. 寸法の不整合 (Dimension Inconsistency)

2. レベルの記入漏れ (Missing Level Information)

3. 設備との干渉 (MEP Interference)

4. 納まりの未検討 (Detail Not Considered)

5. 記号・注記の間違い (Symbol & Note Errors)

6.3 現場での活用方法 (Site Application)

1. 朝礼での説明 (Morning Meeting)

2. 職人への指示 (Instructions to Craftsmen)

3. 検査での使用 (Inspection)

4. 変更管理 (Change Management)

6.4 職人とのコミュニケーション (Communication with Craftsmen)

効果的な図面の使い方:


重要な日本語建築用語集
Important Japanese Construction Terms

日本語 (Japanese) 読み (Yomi) 英語 (English)
せこうず Shop Drawing
くたい Structural Frame
おさまり Detail / Fitting
へいめんず Floor Plan
だんめんず Section Drawing
とおりしん Grid Line
けあげ Riser
ふみづら Tread
きそ Foundation
はり Beam
はしら Column
てんじょうだか Ceiling Height (CH)
ゆかレベル Floor Level (FL)
しあげ Finishing
かせつ Temporary Works
かたわく Formwork
はいきん Reinforcement Layout
かいこうぶ Opening
たてぐ Joinery / Door & Window

学習のポイント
Learning Points

📚 施工図作成の流れを理解する (Understanding the Workflow)

  1. 設計図の確認:まず設計図をよく読み、全体を理解する
  2. 関連図面との整合確認:意匠・構造・設備図の整合性をチェック
  3. 施工方法の検討:どのように施工するか計画を立てる
  4. 施工図の作成:CADで図面を作成する
  5. チェックと承認:上司や監理者の確認を受ける
  6. 現場への配布:関係者全員に図面を配布する

🔨 実践で覚える (Learn by Practice)

📖 継続的な学習 (Continuous Learning)


まとめ / Summary

施工図の3つの基本原則

  1. 正確性 (Accuracy)
    寸法、レベル、仕様を正確に記載する。ミスは大きな損失につながります。
  2. 整合性 (Consistency)
    全ての図面の整合を確認する。矛盾があると現場が混乱します。
  3. 明確性 (Clarity)
    誰が見ても分かりやすく描く。職人が理解できなければ意味がありません。

日本の建築現場では、施工図の品質が建物の品質を左右します。

この講座で学んだ基本を実践で活かし、優れた技術者を目指してください。

💡 覚えておきたい言葉:

「図面は建物を建てるための設計図であり、同時に品質を保証する約束でもある」

"Drawings are blueprints for construction and also a promise of quality assurance"


参考資料・出典 / References


作成日: 2025年12月
対象: ミャンマー人建築技術者向け日本建築施工図基礎講習会
© 2025 NARUKAWA Japanese Engineering Class. All Rights Reserved.

建築施工図の基本 第2章・第3章

躯体施工図と仕上げ施工図の詳細
ミャンマー人建築技術者向け日本建築施工図基礎講習会
作成日: 2025年12月 | © NARUKAWA Japanese Engineering Class
はじめに / Introduction このテキストは、日本の建築現場で働く技術者のために作成されました。第1章で学んだ基礎を元に、より実践的な「躯体(くたい)」と「仕上げ(しあげ)」の図面について詳しく学びます。
This textbook is designed for engineers working at Japanese construction sites. Based on the basics learned in Chapter 1, we will study practical "Structure (Kutai)" and "Finishing (Shiage)" drawings in detail.

第2章: 躯体施工図の詳細
Chapter 2: Details of Structural Construction Drawings

2-1. 鉄筋加工図(配筋図)
Reinforcement Bar Fabrication & Arrangement Drawings

鉄筋加工図(てっきんかこうず / Rebar fabrication drawing)は、工場で鉄筋を切断・加工するために必要な図面です。一方、配筋図(はいきんず / Rebar arrangement drawing)は、現場で鉄筋をどのように組み立てるかを示した図面です。

鉄筋の種類と記号 / Types and Symbols 日本では「D」の後に直径(mm)をつけて鉄筋の太さを表します。
鉄筋の種類と形状
図2-1: 鉄筋の種類と形状 (Types and shapes of reinforcing bars)

かぶり厚さ(かぶりあつさ / Concrete Cover)は、鉄筋が錆びないようにするために必要なコンクリートの厚みです。

配筋図の実例
図2-2: 配筋図の実例 - 柱と梁の交差部 (Example of Rebar Arrangement Drawing)
重要:配筋図のチェックポイント / Checkpoints
  1. 鉄筋の太さと本数は正しいか? (Correct size and number?)
  2. かぶり厚さは確保されているか? (Is concrete cover sufficient?)
  3. 鉄筋の間隔(ピッチ)は正しいか? (Is the pitch correct?) @200, @150など
  4. 継手(つぎて / Joint)の位置と長さは適切か?
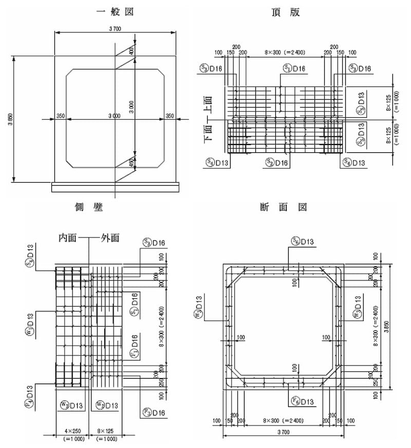
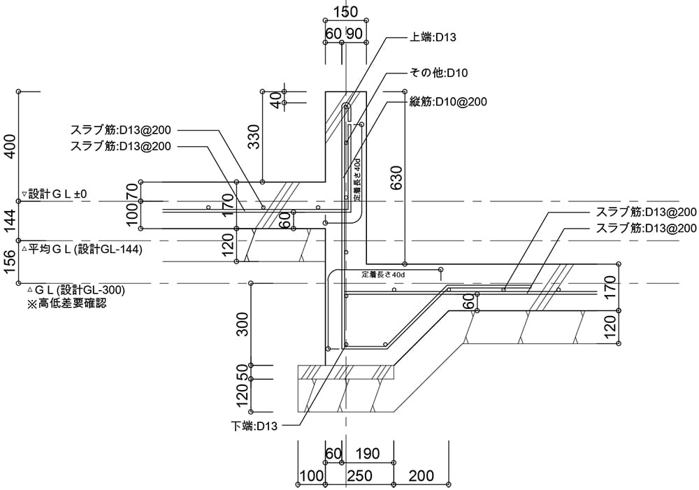
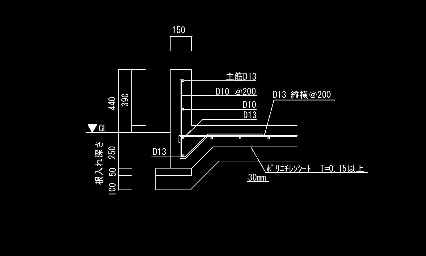
基礎配筋図
図2-3: 基礎配筋図の例 (Example of Foundation Rebar Drawing)
配筋詳細図
図2-4: 配筋詳細図 (Detailed Rebar Drawing)
鉄筋の継手(つぎて)/ Rebar Joints 鉄筋は工場から決まった長さで届くため、現場で繋ぐ必要があります。継手には3つの種類があります:
鉄筋継手の種類
図2-4a: 鉄筋継手の3つの種類 (Three types of rebar joints)
重ね継手と圧接継手
図2-4b: 重ね継手(左)と圧接継手(右)の詳細 (Lap joint and gas pressure welding)
機械式継手
図2-4c: 機械式継手(ネジカプラー)の構造 (Mechanical coupler joint structure)

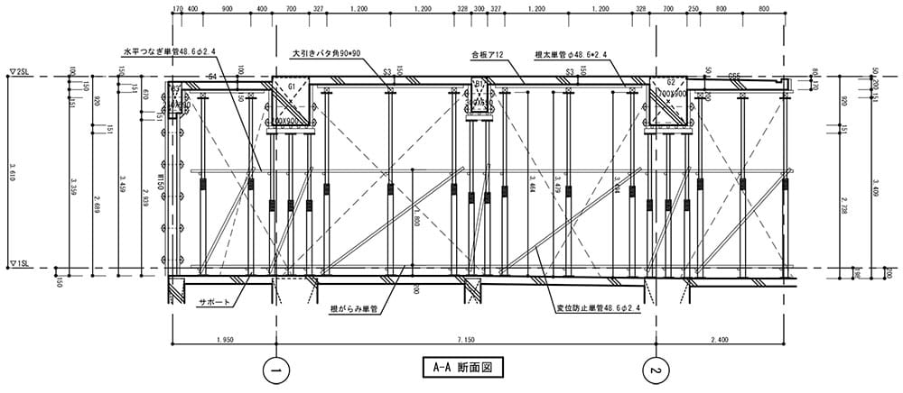
2-2. 型枠図(かたわくず)
Formwork Drawings

型枠(かたわく / Formwork)は、コンクリートを流し込んで固めるための「器(うつわ)」を作る工事です。型枠図は、この器をどのように組み立てるかを示します。

部材名 (Japanese) 読み方 (Reading) 英語 (English) 役割
せき板 せきいた Sheathing / Panel コンクリートに直接触れる板(ベニヤ板など)
根太 ねだ Joist せき板を支える角材やパイプ
大引き おおびき Girder 根太を支える太い材
支保工 しほこう Support / Shoring 型枠全体を下から支える柱(パイプサポート)
型枠構造図
図2-5: 型枠の構造図 (Structure of Formwork)
安全管理の重要ポイント / Safety Management 型枠支保工(かたわくしほこう)の崩壊は重大な事故につながります。
「パイプサポート」の間隔と固定は、計算書通りに厳密に行う必要があります。
型枠支保工計画図
図2-6: 型枠支保工計画図 (Formwork Shoring Plan)
型枠支保工詳細
図2-7: 支保工の詳細と計算 (Details of Shoring and Calculation)
型枠支保工詳細図
図2-8: 支保工の組み立て詳細 (Assembly details of shoring)

2-3. コンクリート打設計画図
Concrete Pouring Plan

コンクリート打設(だせつ / Pouring)は、時間との勝負です。事前に計画図を作成し、以下の点を確認します。

第3章: 仕上げ施工図の詳細
Chapter 3: Details of Finishing Construction Drawings

3-1. 内装詳細図(ないそうしょうサイズ)
Interior Detail Drawings

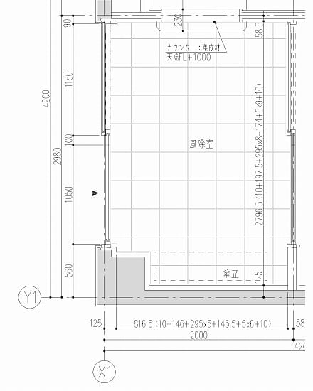
建物の中身を作るための図面です。平面詳細図(へいめんしょうさいず / Detailed Floor Plan)は、縮尺1/50や1/30で描かれ、部屋の正確な寸法や仕上げ材の位置を示します。

平面詳細図のポイント / Points of Detailed Floor Plan
平面詳細図
図3-1: 平面詳細図の実例 (Example of Detailed Floor Plan)
平面詳細図例
図3-2: 平面詳細図の寸法表記 (Dimensioning in Detailed Floor Plan)

展開図(てんかいず / Elevation / Interior Elevation)は、部屋の中央から東西南北の壁を見た図面です。天井の高さ(CH)や窓の高さ、コンセントの位置などが分かります。

内装詳細図
図3-3: 内装詳細図と納まり (Interior Details and Fitting)
内装図面(造作図)
図3-4: 造作家具と内装の図面 (Millwork and Interior Drawing)

天井伏せ図(てんじょうふせず / Reflected Ceiling Plan - RCP)は、床に鏡を置いて天井を映したような図面です。照明器具、空調吹出口、スプリンクラーなどの位置が分かります。

天井伏せ図の基本
図3-4a: 天井伏せ図の基本構成 (Basic components of Reflected Ceiling Plan)
天井伏せ図と照明計画
図3-4b: 天井伏せ図と照明器具の配置 (RCP with lighting fixture layout)
天井伏せ図の実例
図3-4c: 天井伏せ図の実例 - オフィス (RCP Example - Office)
平面詳細図・天井伏せ図・展開図の関係
図3-4d: 平面詳細図・天井伏せ図・展開図の関係 (Relationship between plans)
天井伏せ図のチェックポイント / RCP Checkpoints

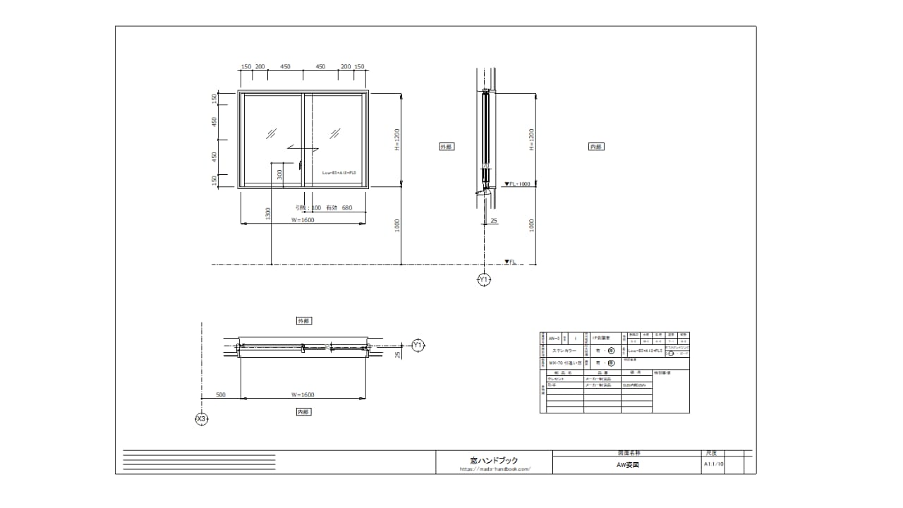
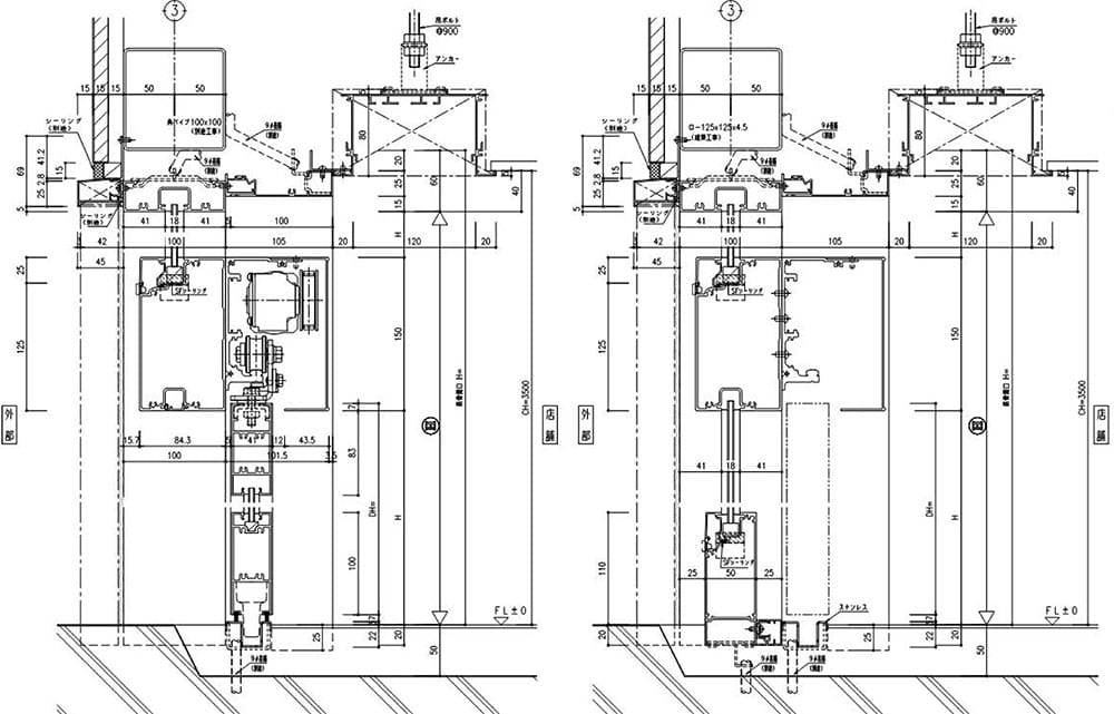
3-2. 建具製作図(たてぐせいさくず)
Joinery / Window & Door Shop Drawings

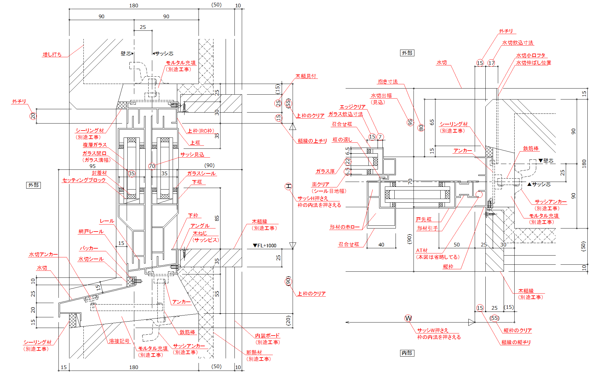
窓(サッシ)やドアを作るための図面です。メーカーが作成し、現場監督が承認します。

主な建具記号 / Symbols
アルミサッシ詳細
図3-5: アルミサッシの断面詳細 (Section Detail of Aluminum Sash)
サッシ図
図3-6: サッシ姿図と断面 (Sash Elevation and Section)

チェックポイント: 開口寸法(Opening dimension)は正しいか? 防水(Waterproofing)の納まりは適切か?

建具製作図
図3-7: 建具製作図の例 (Example of Joinery Shop Drawing)
スチールドア
図3-8: スチールドア(SD)の製作図 (Steel Door Shop Drawing)

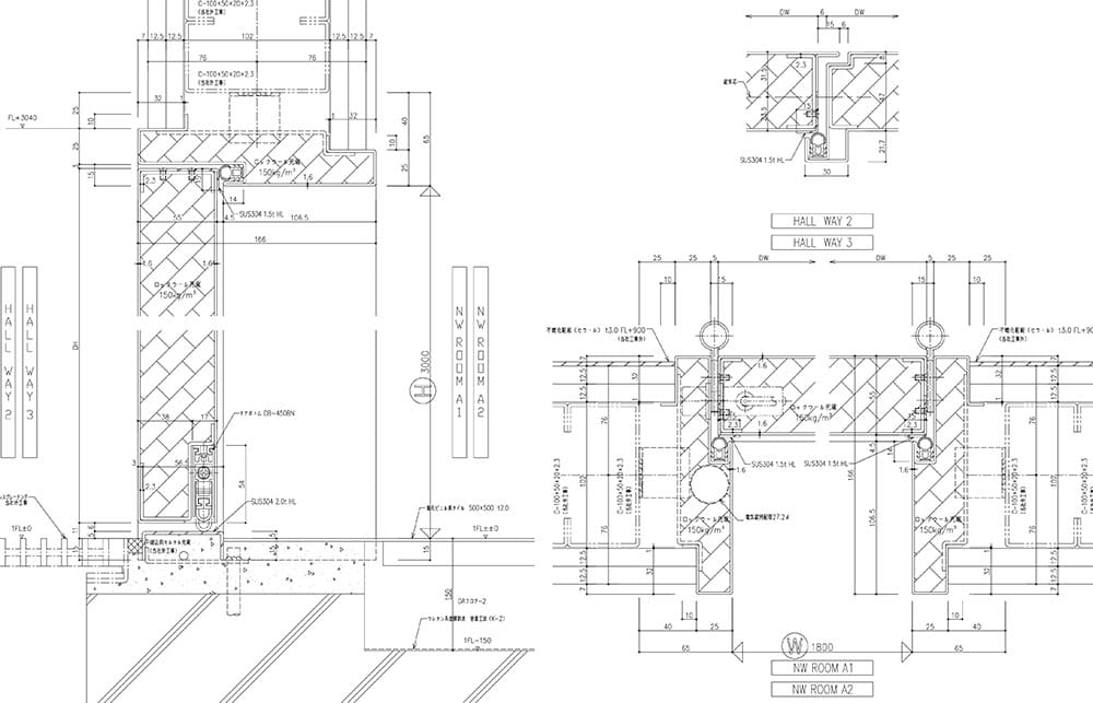
3-3. 金物製作図(かなものせいさくず)
Metal Work Shop Drawings

手すり(Handrail)、笠木(Coping)、タラップ(Ladder)などの金属製品の図面です。 アンカーボルトの位置や、溶接(ようせつ / Welding)の方法が詳しく書かれています。


付録: 重要用語集 (Japanese - English - Myanmar Checklist)

日本語 (Japanese) 読み方 (Reading) 英語 (English) Myanmar Note
躯体関連 (Structural Terms)
鉄筋 てっきん Rebar / Reinforcing bar
配筋図 はいきんず Bar arrangement drawing
かぶり厚さ かぶりあつさ Concrete cover
定着長さ ていちゃくながさ Anchorage length
型枠 かたわく Formwork
支保工 しほこう Shoring / Support
打設 だせつ Concrete pouring
目地 めじ Joint
仕上げ関連 (Finishing Terms)
平面詳細図 へいめんしょうさいず Detailed floor plan
展開図 てんかいず Interior elevation
天井伏せ図 てんじょうふせず Reflected ceiling plan
巾木 はばき Baseboard / Skirting
建具 たてぐ Fittings (Doors/Windows)
手すり てすり Handrail
納まり おさまり Fitting / Detail

To be continued...

次回は「第4章:設備施工図の基本」と「第5章:施工図作成の実践とCAD」について学びます。 Next: Chapter 4 (Equipment Drawings) and Chapter 5 (Practical CAD Drawing).

建築施工図の基本
第4章・第5章

設備施工図と専門工事施工図
Basics of Construction Drawings: MEP & Specialized Works

作成日 / Date: 2025年12月

対象 / Target: ミャンマー人建築技術者向け
日本建築施工図基礎講習会

目次 / Table of Contents

第4章: 設備施工図の基本
Chapter 4: Basics of MEP Drawings

📚 第4章で学ぶこと / What You Will Learn in Chapter 4

この章では、建築物に欠かせない設備(電気・給排水・空調)の施工図について学びます。設備記号の読み方、図面の見方、そして建築との調整方法を理解しましょう。

4-1. 設備施工図とは / What are MEP Drawings?

設備施工図せつびせこうずの定義と役割

設備施工図は、設計図(Design Drawings)をもとに、実際に現場で工事ができるように、機器の正確な位置、配管のルート、寸法などを詳細に書き表した図面です。建築図(意匠図・構造図)と重ね合わせ、干渉がないかを確認するために非常に重要です。

MEP (Mechanical, Electrical, and Plumbing) working drawings show precise locations, routing, and dimensions of equipment based on design drawings. They are crucial for checking interferences with architectural and structural elements.

主な設備工事の種類 / Types of MEP Works

4-2. 電気設備図の見方 / Electrical Drawings

電気図面には、主に「平面図(配線図)」、「単線結線図(盤関係)」、「詳細図」があります。

電気記号一覧 / Electrical Symbols

分類 / Category 記号 / Symbol (Shape) 日本語名称 / Japanese Name 英語名称 / English Name
盤類
Panels
■ (黒四角) 配電盤はいでんばん Distribution Panel
☒ (白四角に×) 分電盤ぶんでんばん Distribution Board
⧄ (白四角に斜線) 制御盤せいぎょばん Control Panel
照明
Lighting
白熱灯はくねつとう (ダウンライト等) Incandescent / Downlight
蛍光灯けいこうとう (ベースライト) Fluorescent Light
▱ (ハッチング) 誘導灯ゆうどうとう Exit Sign / Guide Light
コンセント
Outlet
⦶ (丸に縦線2本) 壁付かべつきコンセント Wall Outlet
Ⓞ (床用) 床付ゆかつきコンセント Floor Outlet
WP 防水ぼうすいコンセント Waterproof Outlet
スイッチ
Switch
点滅器てんめつき (スイッチ) Switch
●3 3路スイッチ 3-way Switch

チェックポイント / Checkpoints

4-3. 給排水衛生設備図の見方 / Plumbing Drawings

水やお湯を供給し、汚れた水を排出するための図面です。「勾配(こうばい / slope)」が非常に重要です。

給排水衛生設備記号一覧

図4-3: 給排水衛生設備記号一覧(Figure 4-3: Plumbing & Sanitary Symbols)

給排水設備記号

図4-5: 給排水設備記号の例(Figure 4-5: Plumbing Symbols Example)

給排水記号一覧 / Plumbing Symbols

分類 / Category 線種・記号 / Symbol 日本語名称 / Japanese Name 用途 / Usage
配管
Piping
― W ― 給水管きゅうすいかん Drinking Water Supply
― H ― 給湯管きゅうとうかん Hot Water Supply
― D ― 排水管はいすいかん (雑排水) Drainage (Gray water)
― S ― 汚水管おすいかん Sewage (Black water)
― V ― 通気管つうきかん Vent Pipe
バルブ
Valve
⧓ (ボウタイ型) 仕切弁しきりべん (ゲート弁) Gate Valve (Shut-off)
N→ 逆止弁ぎゃくしべん (チャッキ) Check Valve
器具
Fixture
◍ (ハッチング丸) ルーフドレーン Roof Drain

重要:排水勾配の基準 / Important: Drainage Slope

水は高いところから低いところへ流れます。適切な勾配が必要です。

4-4. 空調換気設備図の見方 / HVAC Drawings

空気を運ぶ「ダクト」はサイズが大きいため、建築(梁や天井)との干渉が最も起こりやすい設備です。

空調換気設備記号一覧

図4-4: 空調換気設備記号一覧(Figure 4-4: HVAC Symbols)

空調換気記号一覧 / HVAC Symbols

分類 / Category 記号 / Symbol 日本語名称 / Japanese Name 英語名称 / English Name
ダクト
Duct
SA (Supply Air) 給気きゅうきダクト Supply Air Duct
RA (Return Air) 還気かんきダクト Return Air Duct
EA (Exhaust Air) 排気はいきダクト Exhaust Air Duct
OA (Outside Air) 外気がいきダクト Outside Air Duct
ダンパー
Damper
VD 風量調節ふうりょうちょうせつダンパー Volume Damper
FD 防火ぼうかダンパー Fire Damper
SMD 排煙はいえんダンパー Smoke Damper

4-5. 設備と建築の調整実務 / Coordination

総合図(そうごうず / Coordination Drawing)

建築、電気、空調、衛生のすべての図面を1枚に重ね合わせた図面です。天井裏でダクトと配管がぶつからないか、照明器具とスプリンクラーの位置が重ならないかなどを確認します。

天井裏の納まり

図4-6: 天井裏の納まり例(Figure 4-6: Ceiling Space Coordination)
ダクト、配管、照明器具、スプリンクラーが天井内で調整される

よくある干渉問題と対策 / Common Interferences

  1. 梁貫通のルール: 梁には鉄筋が入っています。スリーブ(配管を通す穴)は、梁の高さ(せい)の1/3の範囲内に、スリーブ径の3倍以上の間隔を空けて配置しなければなりません。
  2. 天井内スペース: 大きなダクトが梁の下を通る場合、天井高さを確保できるか確認が必要です。

第5章: 専門工事施工図
Chapter 5: Specialized Construction Drawings

📚 第5章で学ぶこと / What You Will Learn in Chapter 5

この章では、建築物の外装や防水など、専門業者が作成する施工図について学びます。美観と機能を両立させる「納まり」の考え方を理解しましょう。

5-1. 外壁工事施工図 / Exterior Wall Works

タイル工事 (Tile Work)

タイルの割り付け(レイアウト)は、建物の美観を決める重要な作業です。

タイル割付図

図5-1: タイル割付図の例(Figure 5-1: Tile Layout Plan)
窓の位置、目地の位置、半端なタイルが入らないかを確認する図面

タイル割付の基本

図5-3: タイル割付の基本(Figure 5-3: Tile Layout Basics)
目地を合わせて美しく仕上げる

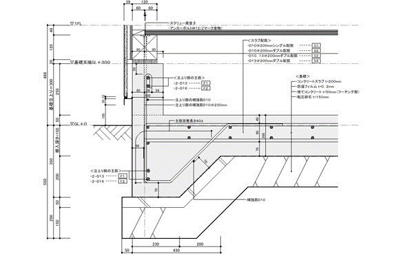
5-2. 防水工事施工図 / Waterproofing Works

雨漏りを防ぐ最も重要な工事です。屋上、バルコニー、廊下などに施工します。

防水工事の種類 / Types of Waterproofing

アスファルト防水 (Asphalt Waterproofing):
溶かしたアスファルトとシートを重ねる工法。信頼性が高い。屋上でよく使われる。
※入隅は50mm、出隅は30mmの面取りが必要。立上がり高さは300mm以上確保。
シート防水 (Sheet Waterproofing):
ゴムや塩ビのシートを貼る工法。屋上やバルコニーに使用。
塗膜防水 (Liquid Applied Waterproofing):
液状の防水材(ウレタンなど)を塗る工法。複雑な形状に適している。
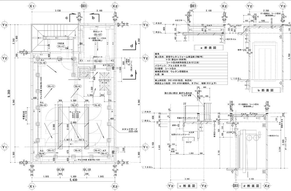
屋上防水詳細図

図5-2: 屋上防水詳細図(Figure 5-2: Roof Waterproofing Detail)
パラペットの立上がり、押えコンクリート、伸縮目地、ドレン回りの詳細

5-3. 屋根工事施工図 / Roofing Works

屋上仕上げの構成 (Flat Roof Composition)

  1. スラブ (Slab): 構造体のコンクリート。
  2. 断熱材 (Insulation): 暑さ寒さを防ぐ。
  3. 防水層 (Waterproofing Layer): 水を防ぐ。
  4. 保護コンクリート (Protective Concrete): 防水層を守る(約60mm厚)。溶接金網(ワイヤーメッシュ)を入れる。

排水勾配 (Drainage Slope): 水たまりができないよう、1/75〜1/100程度の勾配をつけ、ルーフドレーン(排水口)へ水を導きます。

5-4. 専門工事施工図作成の実務ポイント

納まりおさまり検討のポイント (Detailing Points)

「納まり」とは、異なる材料や部材が出会う部分が、機能的・美観的にうまく処理されている状態のことです。


付録 / Appendix

重要用語集 / Important Terminology

現場でよく使われる用語です。(Myanmar語訳は学習用スペースです)

日本語 (Japanese) 読み (Furigana) 英語 (English) Myanmar (Note)
設備関連 / MEP Terms
配電盤 はいでんばん Distribution Panel
照明器具 しょうめいきぐ Lighting Fixture
コンセント こんせんと Outlet / Socket
給水管 きゅうすいかん Water Supply Pipe
排水管 はいすいかん Drainage Pipe
勾配 こうばい Slope / Gradient
通気管 つうきかん Vent Pipe
衛生器具 えいせいきぐ Sanitary Fixture
空調機 くうちょうき Air Conditioner
ダクト だくと Duct
スリーブ すりーぶ Sleeve (Pipe penetration)
梁貫通 はりかんつう Beam Penetration
インサート いんさーと Insert (Anchor)
干渉 かんしょう Interference / Clash
試運転 しうんてん Test Run / Commissioning
専門工事関連 / Specialized Works Terms
外壁 がいへき Exterior Wall
タイル たいる Tile
目地 めじ Joint
伸縮目地 しんしゅくめじ Expansion Joint
防水 ぼうすい Waterproofing
アスファルト防水 あすふぁるとぼうすい Asphalt Waterproofing
シーリング しーりんぐ Sealing / Caulking
屋上 おくじょう Rooftop
パラペット ぱらぺっと Parapet
ドレン どれん Drain
立上がり たちあがり Upstand / Rise
足場 あしば Scaffolding
養生 ようじょう Curing / Protection
納まり おさまり Detailing / Fitting
墨出し すみだし Marking / Layout
換気扇 かんきせん Ventilation Fan
吹出口 ふきだしぐち Supply Air Outlet
防火ダンパー ぼうかだんぱー Fire Damper
逆止弁 ぎゃくしべん Check Valve
バルブ ばるぶ Valve
湿式工法 しっしきこうほう Wet Method
乾式工法 かんしきこうほう Dry Method
出隅 ですみ External Corner
入隅 いりすみ Internal Corner
押えコンクリート おさえこんくりーと Protective Concrete
断熱材 だんねつざい Insulation Material
笠木 かさぎ Coping / Cap
水切り みずきり Drip Edge / Flashing
総合図 そうごうず Coordination Drawing

学習メモ / Study Note

現場では「略語」がよく使われます。例えば:


まとめ / Summary

第4章・第5章の重要ポイント / Key Points

✅ 設備施工図(第4章)
  1. 記号を覚える: 電気・給排水・空調それぞれの記号を理解することが第一歩
  2. 建築との調整: 梁貫通のルール、天井高さの確保、スリーブ位置の確認
  3. 勾配の重要性: 排水管は必ず勾配が必要(水が流れる方向)
  4. 総合図の役割: すべての設備と建築の干渉をチェックする最重要図面
✅ 専門工事施工図(第5章)
  1. タイル割付: 建具位置、目地位置を考慮し、半端なタイルが出ないように計画
  2. 防水工事: 立上がり300mm以上、入隅50mm・出隅30mm面取り、伸縮目地の配置
  3. 納まり検討: 水仕舞い(水が浸入しない)、施工順序、逃げ寸法の確保
  4. 図面承認: 専門業者との調整→施工図作成→承認→施工の流れ

次のステップ / Next Steps

この講習会資料で学んだ基礎知識をもとに、次のステップに進みましょう:

日本の建築施工図の学習、頑張ってください!

Good luck with your study of Japanese construction drawings!

この資料が、皆さんの技術者としての成長の一助となることを願っています。
We hope this material will help you grow as a construction professional.

© 2025 NARUKAWA Japanese Engineering Class
All Rights Reserved

作成日: 2025年12月
対象: ミャンマー人建築技術者向け日本建築施工図基礎講習会
© NARUKAWA Japanese Engineering Class

建築施工図の基本 第6章・第7章・第8章
仮設計画図・CAD実践・現場事例

目次 / Table of Contents

第6章: 仮設計画図と躯体図の詳細解説
Detailed Explanation of Temporary Works Plans and Structural Drawings

6-1. 仮設計画図の役割 / Role of Temporary Works Plans

仮設計画図は、建物を建設するために一時的に必要となる設備や構造物を示す図面です。建物完成後には撤去されますが、工事の安全、品質、工程を守るために極めて重要です。
Temporary works plans show temporary facilities and structures required to construct the building. Although removed after completion, they are crucial for safety, quality, and schedule.

6-2. 総合仮設計画図 / Site Temporary Works Plan

工事期間中の敷地全体の利用計画を示します。仮囲い、ゲート、現場事務所、資材置き場、クレーンの配置などを記載します。
Shows the utilization plan for the entire site during the construction period. Includes site enclosure, gates, site office, material storage, and crane positioning.

ポイント / Point:
動線計画(Traffic Line Plan)が重要です。車両と作業員の動線を分け、安全で効率的な配置を検討します。
Traffic line planning is important. Separate vehicle and worker paths to ensure safety and efficiency.

図6-2: 総合仮設計画図(平面図・断面図) / Site Temporary Works Plan

総合仮設計画図(平面図・断面図)

出典: 総合仮設計画図の実例

6-3. 根切・山留計画図 / Excavation and Earth Retaining Plan

地下部分を作るために土を掘る(根切)範囲と、周囲の土が崩れないように支える壁(山留)の計画図です。
Plan for excavating soil (Negiri) to construct underground parts and the retaining wall (Yamadome) to prevent surrounding soil collapse.

図6-3: 根切・山留計画図 / Excavation and Earth Retaining Plan

根切・山留計画図

出典: 根切・山留計画図の実例

6-4. 外部足場計画図 / Scaffolding Plan

建物の外周に設置する作業用足場の計画図です。安全な作業通路の確保、落下防止ネット(朝顔)の設置などが描かれます。
Plan for working scaffolding installed around the building perimeter. Ensures safe walkways and includes fall prevention nets (Asagao).

図6-4: 足場架設通路計画図 / Scaffolding Plan

足場架設通路計画図

出典: 足場計画図の実例(立面図)

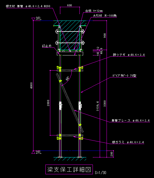
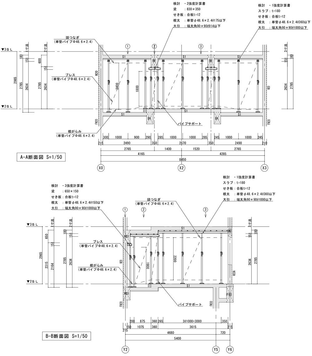
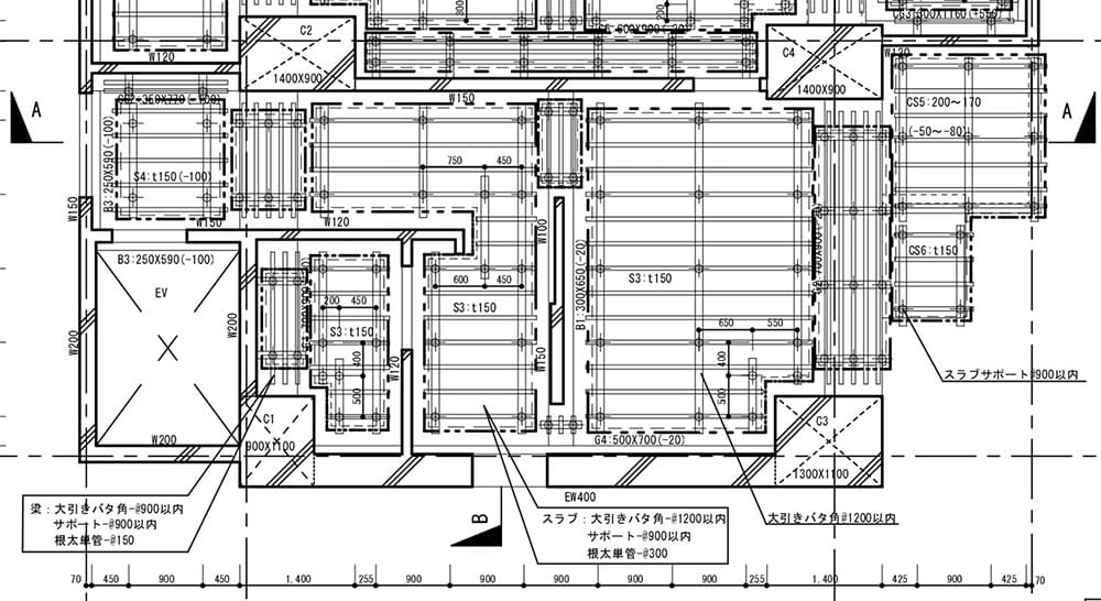
6-5. 型枠支保工計画図 / Formwork Support Plan

コンクリートを流し込む型枠を支えるための支柱(サポート)や梁(大引き・根太)の配置図です。コンクリートの重量に耐えられるよう計算して配置します。
Layout plan of props (supports) and beams (sleepers/joists) to support formwork for pouring concrete. Arranged based on calculations to withstand concrete weight.

図6-5: 型枠支保工計画図(貸店舗)/ Formwork Support Plan

型枠支保工計画図(貸店舗)

出典: 型枠支保工計画図の実例

図6-6: 型枠支保工計画図(階段最上階スラブ)/ Formwork Support Plan (Stair)

型枠支保工計画図(階段最上階スラブ)

出典: 型枠支保工計画図の実例(階段部分)

6-7. 躯体図の詳細解説 / Detailed Structural Drawings

躯体図は、建物の骨組み(コンクリートの壁、柱、床、梁)の形状と寸法を正確に示す図面です。
Structural drawings accurately show the shape and dimensions of the building frame (concrete walls, columns, floors, beams).

図6-7: 杭・基礎伏図および断面図 / Pile & Foundation Plan

基礎配筋図

出典: 基礎伏図・配筋図の実例

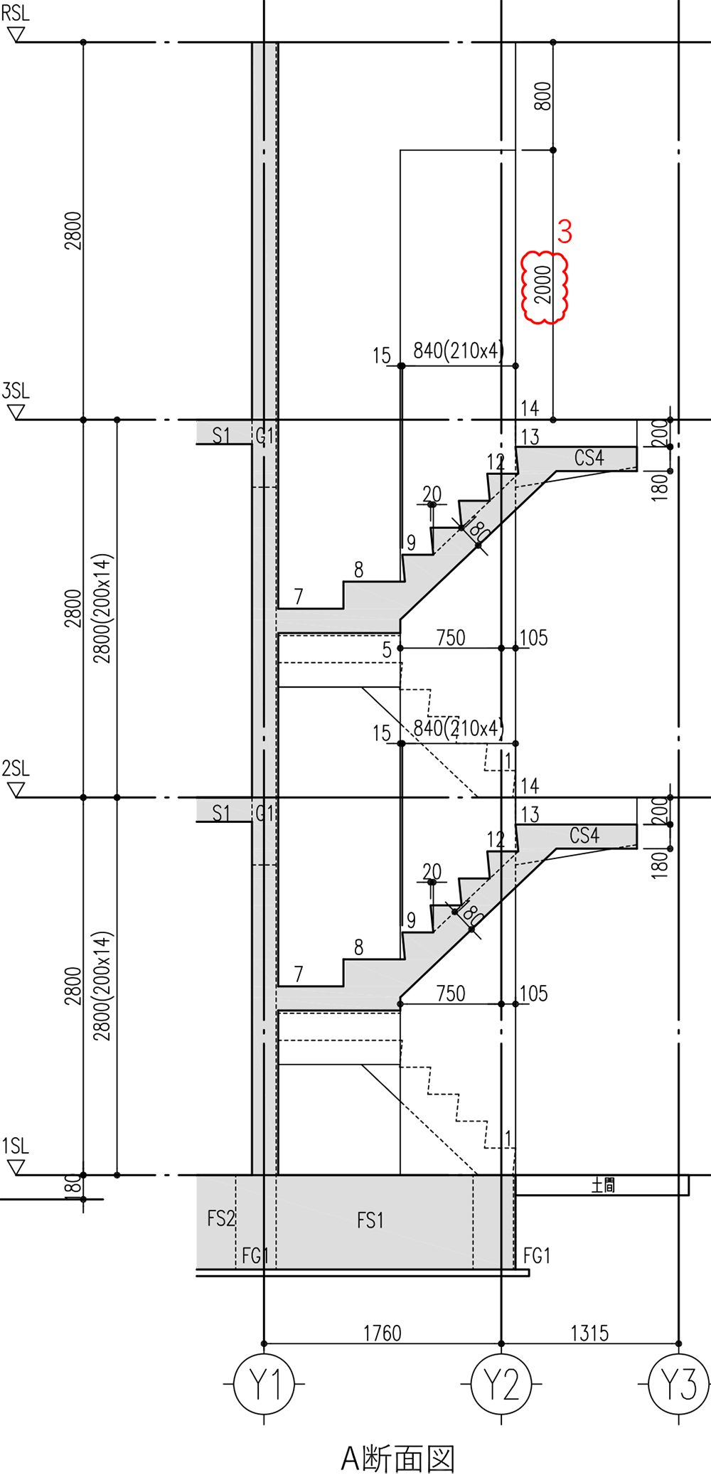
図6-8: 階段躯体詳細図 / Stair Structure Detail

階段躯体図

出典: 階段躯体図の実例

第7章: CADによる施工図作成実践
Practice of Creating Construction Drawings with CAD

7-1. 施工図で使われるCADソフト / CAD Software for Construction Drawings

日本の建築現場では主に以下のCADソフトが使用されます。
The following CAD software is mainly used in Japanese construction sites.

7-3. 施工図作成の実践手順 / Practical Steps for Drawing Creation

CADを使った躯体図作成の基本的な流れです。
Basic flow of creating structural drawings using CAD.

  1. 設計図の読み込み: 通り芯、柱、梁の基本情報を確認。
  2. 通り芯の作図: 正確な位置に配置。
  3. コンクリートラインの作図: 柱・壁・梁の線を描く(太線)。
  4. 寸法線の記入: 通り芯からの追い出し寸法を記入。
  5. 符号の記入: 柱(C1)、梁(G1)、スラブ(S1)などの符号を記入。

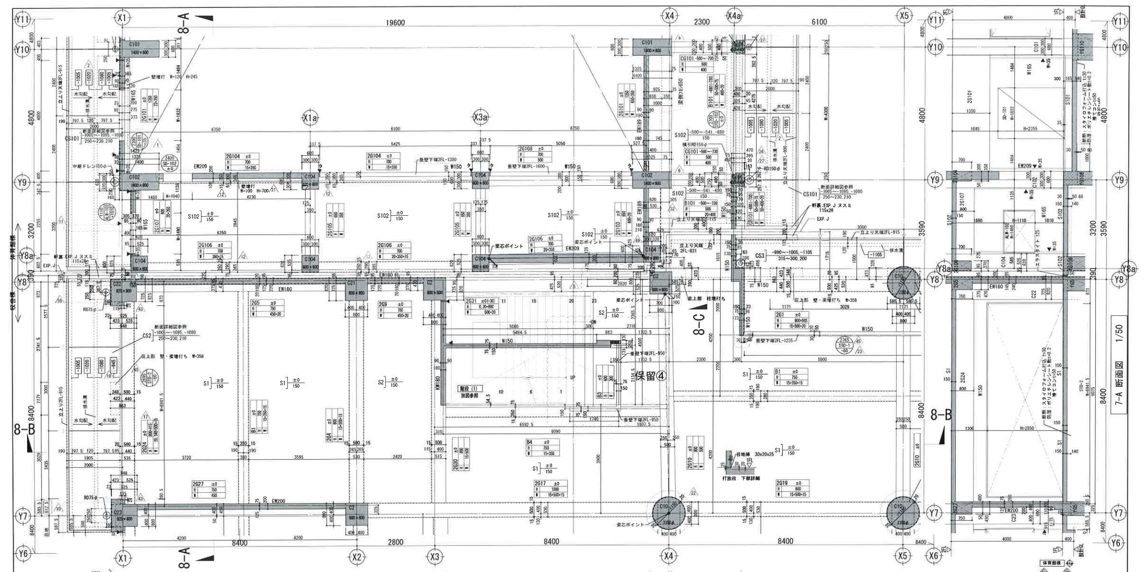
図7-1: CADによる躯体図作成例 / CAD Drawing Example

躯体図CAD作成例

出典: WRC造躯体図の実例(CAD作成)

第8章: 実際の現場事例
Actual Site Cases and Troubleshooting

8-1. トラブル事例と対策 / Trouble Cases and Countermeasures

事例: 設備配管と梁の干渉 / Case: Interference between piping and beams

設計図では梁を貫通する予定だった配管が、実際には梁の鉄筋と干渉して通せないことが判明。
It was found that piping scheduled to penetrate the beam in the design drawing actually interfered with the beam reinforcement.

対策 / Countermeasure: 施工図作成段階(総合図)で、スリーブ位置と鉄筋位置を重ね合わせてチェックする。
Check sleeve positions against reinforcement positions during the construction drawing phase (Composite Drawing).

8-4. 現場でのコミュニケーション / Communication on Site

施工図は「現場の共通言語」です。図面を使って職人さんや他業者と正確に情報を共有しましょう。
Construction drawings are the "common language of the site." Use drawings to share information accurately with craftsmen and other contractors.

図8-6: 設備施工計画図の記号一覧(電気・空調・衛生設備)/ Equipment Symbols Reference

1. 電気設備シンボル / Electrical Symbols
電気設備記号一覧
2. 電気配線図の記号詳細 / Electrical Wiring Symbols Detail
電気配線図記号
3. 給排水衛生設備シンボル / Plumbing & Sanitary Symbols
給排水衛生設備記号
4. 配管記号詳細 / Piping Symbols Detail
配管記号

出典: 建築設備図面記号一覧(電気・給排水・空調)


総まとめ / Summary

これまでの全8章を通じて、建築施工図の基本から応用、実践的なトラブル対策までを学びました。施工図は建物の品質を左右する重要な仕事です。正確な図面を描き、現場をスムーズに進めるプロフェッショナルを目指してください。
Through all 8 chapters, we have learned from the basics to applications and practical troubleshooting of construction drawings. Construction drawings determine the quality of the building. Aim to be a professional who draws accurate plans and facilitates smooth site operations.

NARUKAWA Japanese Engineering Class

Produce by NL-DG Co.,ltd NARUKAWA Co.,ltd